Custom 21×24 Wood Pergola in Malden, MA

Mark and Michelle had a unique situation where they could walk straight from the lawn of their Malden home’s backyard on to the roof of their detached 2-car garage. They wanted to transform this rooftop space into a spot to relax in the shade and entertain family and friends while enjoying the beautiful view it provides. The pair had unsuccessfully searched for a wood pergola that would fit this specific space so they eventually visited our Hanover Design Center to explain their vision.

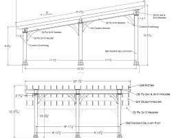
An Outdoor Personia design consultant visited Mark and Michelle’s home to take measurements and thoroughly examine the layout of the property. We were then able to suggest a Swan Custom 21×24 Wood Pergola to perfectly fit into the existing space and match the beauty of their backyard landscape. The pine wood frame was stained a rich brown and a black metal railing system was attached to complete the rustic style of the supporting garage beneath the pergola.

As a unique benefit, Mark then installed a solar panel system to capture sunlight to produce affordable electricity while even adding more shade to their sitting area. The happy couple love the final results of their transformed space and we are impressed with how the pergola now has the practical function of helping the couple to save on their utility bills!

If you’ve been dreaming of a shady place to dine, relax, or an attractive spot to host backyard gatherings, we’d love to custom design and build a pergola that’s just right for you. Feel free to contact one of our expert design consultants today!

Custom 21x24 Wood Pergola

This project includes the following Outdoor Personia brands:

See More Photos from this Client’s Solution

If you’ve been dreaming of your own backyard building, we’d love to design and custom-build a structure that’s just right for you. Feel free to contact one of our expert design consultants today!

Get Started Now!

1-508-938-8611