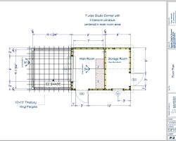
A 10×16 Custom Pool House with Attached Pergola in Andover, MA

Karen’s poolside patio area needed help drastically. She enjoyed hosting parties outdoors, but her existing shed detracted from her beautiful pool and provided neither a comfortable shade structure for relaxation nor space to serve food and drinks. Karen longed for the perfect custom pool house with space that provided all these amenities. Her dream burst into reality when she bumped into Outdoor Personia’s website in her pool house search!

After a phone call and a few emails where we exchanged photos of some pool house ideas, Karen found herself sitting in our Bellingham Design Center, nailing down the specifics of a custom pool house plan with the attached custom pergola she wanted.

We sketched a 10×16 pool house design with a delightful kitchen area complete with quality cabinetry and a Bahama serving window. The final design included a storage area, utility room, and the attached pergola for that coveted shade. We were able to match the cedar clapboard siding to the existing siding on Karen’s house. A dormer allows light to infiltrate the kitchen area.

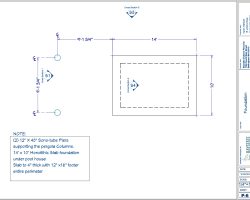
Outdoor Personia coordinated the building permit and electrical details as well as the site preparation and foundation. We can do the same for your project. So stop dreaming, and start planning your custom pool house with Outdoor Personia today!

Cedar Sided Pool House with Attached Pergola

This project includes the following Outdoor Personia brands:

See More Photos from this Client’s Solution

If you’ve been dreaming of your own backyard building, we’d love to design and custom-build a structure that’s just right for you. Feel free to contact one of our expert design consultants today!

Get Started Now!

1-508-938-8611