Custom 8×12 Trestle Shed in Shrewsbury, MA

Chaz’s garage was full. Too full, in fact, to create a neat space for his yard supplies. Surely, someone could provide him with an affordable solution to his “needing more space” predicament, couldn’t they? As Chaz researched custom sheds online, he came across our website. The slew of creative, personalized touches offered by Outdoor Personia for their custom sheds customers caught his eye…

After contacting us, he decided a quick visit to our design center in Bellingham would be the next step in order to discuss the details of his dream project with one of our professionals.

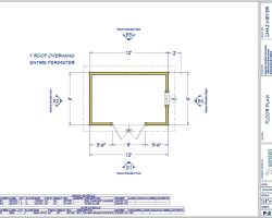
After hearing Chaz’s needs and gaining an understanding of his property, we agreed that an 8×12 modern shed design with a single slope roof and James Hardie siding would both accommodate his needs and beautifully complement his property. For added curb appeal, we custom matched the modern shed’s exterior paint to the color of Chaz’s house.

Then came the fun part. The installation. After designing the shed for Chaz, Outdoor Personia’s team prepared the gravel foundation and built the shed, placing it in an ideal corner of his property. And there Chaz had it – the perfect solution to his crowded garage dilemma.

Call Outdoor Personia to expand your property’s storage space today.

8 by 12 custom shed with james hardy siding

This project includes the following Outdoor Personia brands:

See More Photos from this Client’s Solution

If you’ve been dreaming of your own backyard building, we’d love to design and custom-build a structure that’s just right for you. Feel free to contact one of our expert design consultants today!

“My shed is exactly the way I want it. It fits into the property great and provides ample storage for my yard items.”

~ Chaz W.

Get Started Now!

1-508-938-8611