A Trestle Custom Garage in Waltham, MA

For some time, James had been dreaming of a new custom garage that would complement his historic 1800’s Victorian home and utilize some old restored windows. His old garage was just too small for his vintage car hobby. A few of the cars needed to be stored in the driveway under car covers.

Outdoor Personia worked with James to design and build his garage just the way he wanted it.

The large awning windows in the workshop area along with the exhaust fan in the custom cupola provide ventilation, as well as letting in natural light to create a pleasant work environment.

The cathedral ceiling was designed to allow plenty of height to accommodate the car lifts, but stay within regulations.

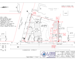
In order to maximize the height restriction and lot coverage threshold, Outdoor Personia successfully worked with the town of Waltham to acquire the required building permits for James.

Are you considering a custom garage? We have helped many local homeowners design and build garages and sheds. Talk to us about how we can personalize a garage to fit your exact needs.

trestle custom garage in waltham, ma

This project includes the following Outdoor Personia brands:

See More Photos from this Client’s Solution

If you’ve been dreaming of your own backyard building, we’d love to design and custom-build a structure that’s just right for you. Feel free to contact one of our expert design consultants today!

“Thank you for the thorough follow through on this project. All the crew members on-site were very courteous and professional. The quality and detail is very good.”

~ James L.

Get Started Now!

1-508-938-8611