A Swan Custom Pool House in Wayland, MA

John and Staci were working with both a pool builder and a hardscape contractor to design and build their dream backyard. During the design process, they realized something was missing. They decided that they needed a pool house that would allow them to have a bathroom, a place to change, and a space to relax in. In addition they wanted to have an outside area that could provide both relief from the heat of the sun, and space for entertaining. Their hardscape contractor recommended that they meet with Outdoor Personia to review their needs and to suggest a solution that would encompass all the elements to creating the perfect finishing touch for their yard.

After a number of meetings with John and Staci, first to review their specific needs and then to review conceptual drawings, we were able to provide a solution that combined two structural elements.

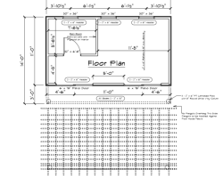
Outdoor Personia worked with their hardscape contractor to provide drawings and specifications for the foundations and footings needed for both the pool house and the pergola. The custom pool house provided the stately look that they wanted, as well as a bathroom and a lounging area.

The dual entryway provided a space between the two doors for a TV. Attached to the pool house was a white, vinyl pergola with a retractable canopy.

What need do you have in your backyard? We would be happy to discuss a solution with you. We design and build personalized pool houses, pergolas, pavilions, gazebos, and more to help you live your outdoor life to the fullest.

Custom Pool House in Wayland, Massachusetts

This project includes the following Outdoor Personia brands:

See More Photos from this Client’s Solution

If you’ve been dreaming of your own backyard building, we’d love to design and custom-build a structure that’s just right for you. Feel free to contact one of our expert design consultants today!

“It is amazing. The crew was super easy to deal with. Now we have a place for the children to play in the loft and watch TV.”

~ John B.

Get Started Now!

1-508-938-8611