A Swan Custom Pool House in Leominster, MA

Kathy had been dreaming of an entire backyard makeover for quite some time. An inground pool was just the thing she wanted. But what was a pool without a pool house? She envisioned a serving area to accommodate a crowd of friends and family along with an indoor area that would provide a space for both relaxation and entertainment. A climate controlled environment was a must to provide warmth for early spring and late fall parties as well as a cool refuge in the summer. The pool house also needed to provide a changing room and storage area for pool supplies because of the distance between the pool and the house.

Outdoor Personia worked with Kathy to help her get the personalized pool house she was looking for. We successfully moved her conceptual pool house plans and ideas forward through the design, permitting, and construction process.

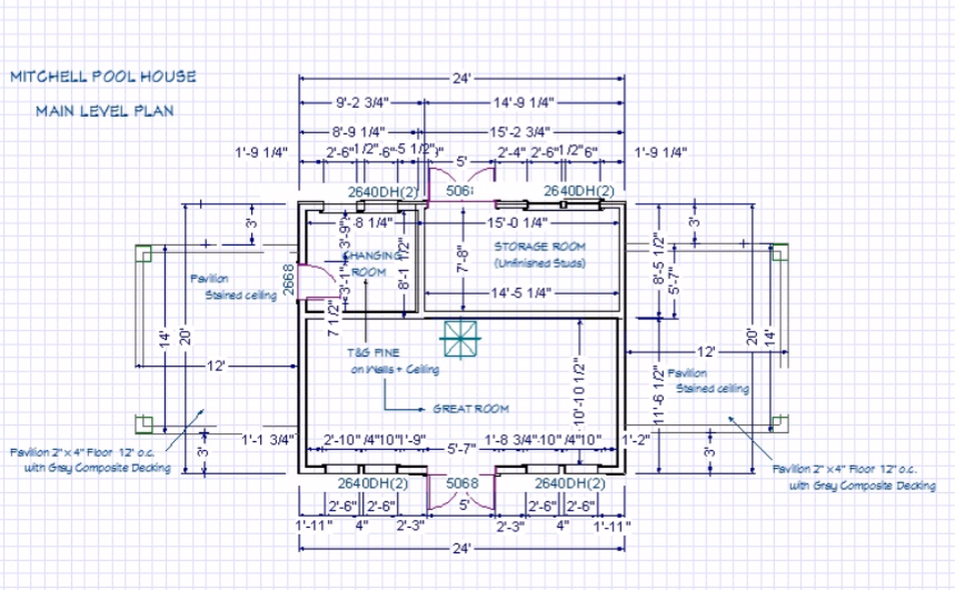
Kathy’s new pool house features large interior spaces including a changing room, a storage room, a loft area for storage and fun, and a gathering room fully equipped with a television, refrigerator, couches, and an hvac system.

The outside porches gave plenty of space to entertain and serve a crowd while protecting them from the weather.

What are you envisioning in your pool area? Let’s talk about how we can design and build a custom pool house, pergola, gazebo, or pavilion for you.

Custom Pool House in Leominster, Massachusetts

This project includes the following Outdoor Personia brands:

See More Photos from this Client’s Solution

If you’ve been dreaming of your own backyard building, we’d love to design and custom-build a structure that’s just right for you. Feel free to contact one of our expert design consultants today!

“It came out great. Everyone is in awe when they see it.”

~ Kathy M.

Get Started Now!

1-508-938-8611