A Swan Custom Pergola in Norwell, MA

Kevin was planning to expand the seating on this back deck to accommodate his love of the outdoors. The old deck had a pergola, but it was small and required a lot of maintenance. It also failed to block any of the sun’s rays. He wanted something maintenance free, functional, but with a classic look.

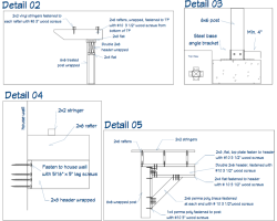
Outdoor Personia designed and built a personalized vinyl pergola with a canopy for Kevin.

The shade system is a huge relief on the hot sunny afternoons. Now he can enjoy his back deck more without needing to spend time maintaining the pergola.

We would be happy to discuss your project. We design and build custom vinyl pergolas for every taste and need.

Custom Vinyl Pergola in Norwell, MA

This project includes the following Outdoor Personia brands:

See More Photos from this Client’s Solution

If you’ve been dreaming of your own backyard building, we’d love to design and custom-build a structure that’s just right for you. Feel free to contact one of our expert design consultants today!

“What a great addition to my new deck, love the looks and the shade. I am still amazed at how fast your crew installed it. They did a great job!”

~ Kevin D.

Get Started Now!

1-508-938-8611